El granero sobre elevado del suelo llamado hórreo, localizado geográficamente en la Península Ibérica con mayor densidad en el arco periférico oeste, en las vertientes atlántica y cantábrica, es sobradamente conocido en lo que respecta a Portugal (zona noroccidental), a Galicia, a Asturias (y zona santanderina bajo su influencia) e incluso Vizcaya. Los numerosos estudios que han ido viendo la luz desde el siglo pasado y aún antes, así lo demuestran. Recordemos a algunos autores preocupados por el tema: Mesquita de Figueiredo, Días, Veiga de Oliveira y Galhano se interesaron por el hórreo portugués; Carlé, López Soler, Martínez Rodríguez, Ibero, Bellmunt, Canella-Secades, Uría y Ríu, Vallaure y Gómez Tabanera se sintieron atraídos, en diferentes épocas, por esta manifestación de lo popular; Iturriza, Larrea, Álvarez Osés, Nolte y Leizaola, señalaron las características del modelo vasco; Feduchi, Flores, Torres Balbás, Hoyos Sancho han condensado en sus visiones generales la presencia del hórreo en España. Aunque el mérito de una primera sistematización de las variantes geográficas y constructivas del hórreo en la Península lo ostenta el polaco Frankowski, que en 1918 logró trazar un panorama de los hórreos peninsulares con éxito, situándolos en su contexto mundial y profundizando en sus orígenes [1].
Pero el hórreo navarro ha sido poco estudiado y, por lo tanto, no es del todo conocido. Creemos que, en esta materia, toda visión de conjunto requiere una catalogación previa de los ejemplares existentes, razón que nos ha movido a publicar el presente estudio de uno de los hórreos hasta ahora no mencionado por ninguno de los estudiosos, luego científicamente no existente. Nos interesamos por el hórreo de Izal, además de por los sentimientos que nos unen a nuestro valle de Salazar, por la razón que acabamos de exponer y por ser el único de su ámbito todavía bien conservado.
Estado actual de nuestro conocimiento del hórreo navarro
En la actualidad, todavía se conserva el hórreo en la zona norte oriental de Navarra, concretándose a los valles de Aézcoa [Orbaiceta [2], Orbara [3], Arive [4], Villanueva [5], Aria [6], Abaurrea Alta [7] y Baja [8], Garralda, Garayoa e Iriberri [9]], Arce [Lusarreta [10]], Lónguida [Erdozain y Ecay [11]], Urraúl Alto [Zabalza y Santa Fe de Epároz [12]] y Orba [Iracheta [13]]. Además del que ahora estudiamos, en el valle de Salazar [Izal]. Es decir, al menos u máximo de treinta y un mínimo de veintitrés. La diferencia entre ambas cifras puede imputarse en parte, a que varios de los hórreos computados fueron derrumbados en los últimos doce años.
Pero en tiempos pasados, como bien sostienen Uranga e Íñiguez [1971, 170], los hórreos fueron más frecuentes en Navarra, situados hacia la parte oriental del reino, próximos a Aragón y a Ribagorza, pero con alguna excepción, como la apuntada por ellos del hórreo del Monasterio de San Millán de la Cogolla, y alguna más que aduciremos a continuación.
La existencia normal de hórreos, vinculados a casas, “palacios” (denominación habitual de las posesiones regias en los pueblos) e iglesias, empieza a documentarse a comienzos del siglo IX y con cierta naturalidad a partir del XI.
Se citan documentalmente, en 1002 y en 1025, los de Calvera, en el valle de Ribagorza, dependientes del Monasterio de Santa María de Obarra, entonces bajo la influencia navarra [14]. En 1093 los de Avárriz, propiedad del Monasterio de San Salvador de Leire [15]. En 1099 el de Lizasoain, bajo el dominio del Monasterio de Irache [16]. En 1102 el de Reta [17], en 1104 los de Benoz [18], en 1109 los de Navasa (en Aragón) [19], en 1110 los de Badostain (cabe Pamplona) [20], en 1117 el de Berroya (en Urraúl Alto) [21], en 1119 el de Adoain (entre Urraúl y Salazar) [22] y en 1131 el de Bolea [23], todos pertenecientes al Monasterio de Leire. En 1315 el del Monasterio de Irache, punto más occidental de los observados, que recibía las pechas en grano de los pueblos próximos [24]. Registramos, incluso, la existencia de otro hórreo en 1582, en el pueblo salacenco de Igal [25]. Y la del “orrio común” de la iglesia de Biurrun, en Valdizarbe, en 1731 [26].
Vemos, pues, que el área de estas construcciones se abre al occidente de Navarra hasta, incluso, Irache, y que los hórreos no eran desconocidos en comarcas próximas a Pamplona. Sin embargo, parece que nunca fueron del todo abundantes. De lo contrario, los documentos de la Orden de San Juan de Jerusalén [27] y de la Real Colegiata de Roncesvalles [28], con sus vastas posesiones por gran parte de Navarra, lo delatarían.
En Navarra se perfila el hórreo como una excepción dentro de los más comunes sistemas de almacenamiento del grano. Así, Iribarren [29] y Caro Baroja [30] nos hablan del “algorio” o “argorio”, consistente en una especie de cajón o armario alto que, por ejemplo en Ochagavía, estaba colocado en el zaguán de la casa; por “algorio” también se han entendido los contenedores de pienso para los animales (en Tierra Estella) o los espacio separados para los granos y también los graneros a los que antiguamente iban destinadas las pechas en grano del rey en os pueblos. Por otra parte, sabemos que se han empleado como graneros grandes arcones de madera, sin rendijas, de cuatro patas que sobrellevan del suelo el fondo del suelo unos centímetros, y con pesada tapadera con cubierta a dos aguas, comparadas por Flores [31] con las cajas de los hórreos gallegos de madera.
Y sin más preámbulos pasemos a examinar el hórreo de Casa Ballaz, no sin antes informar que el pueblo en que se halla enclavado, Izal, dista de Pamplona 74,5 kms. En dirección NE, se encuentra a 711 ms. sobre el nivel del mar, constaba aproximadamente de 125 habitantes en 1972 y basa su economía, como el resto de los otros catorce pueblos integrantes del valle de Salazar, en la agricultura, la ganadería y la explotación maderera, como fruto de su participación comunitaria en los bosques del Irati.
Descripción y funciones del hórreo de Casa Ballaz
El hórreo se sitúa en el patio de la Casa Ballaz a una distancia de 3,50 ms. de la misma y en recinto separado de la calle de acceso por un muro de mampostería. Su entrada está orientad al norte y en coincidencia con la casa que lo protege de dicha orientación.
Es conocido como la “Garaia”, si bien no persiste en la actualidad nomenclatura específica para designar sus partes constructivas o funcionales.
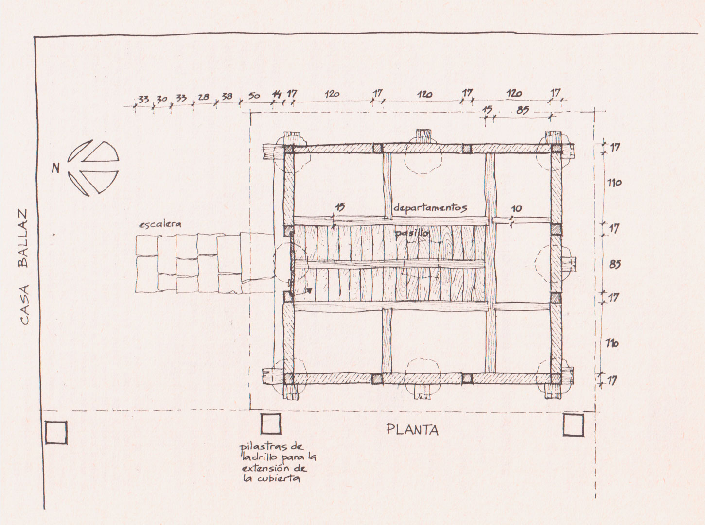
Tiene planta rectangular de dimensiones 4,25 por 3,70 metros.
Se sustenta en 9 pilares de piedra, de forma troncocónica, de los que 8 se sitúan en su perímetro apoyados en muro de mampostería, que a modo de cimentación, está enrasado en el terreno. Sobre los pilares se disponen losas circulares de piedra para impedir el acceso de roedores al interior. En el apoyo central existente esta losa está sustituida por una gruesa pieza de madera.
Sobre las losas se dispone un entramado de madera, construido por tres vigas transversales (las inferiores) y sobre ellas tres longitudinales, todas ellas de sección aproximada de 24/24 cms. El apoyo central descrito viene a calzar el puente formado por las vigas de madera, por lo que, unido a su singularidad, bien pudiera haber sido colocado posteriormente.
El piso está constituido por tablas de madera, sobre el entramado descrito, y se sitúa a 1,40 ms. del suelo aproximadamente, realizándose el acceso mediante escalera exterior de piedra, perpendicular a la fachada.
Las paredes del hórreo están configuradas por entramado de madera, de sección aproximada de 17/17 cms. Que divide cada fachada en tres paños. El relleno entre los maderos está realizado con piedra “tosca” [32] revocada interior y exteriormente con mortero de cal con un grosor de 17 cms.
La cubierta es a dos aguas, en sentido longitudinal, con una pendiente del 36 por ciento (20º), formada por viguetas de madera en el sentido de la pendiente, sobre las que se han colocado tablas de madera. La cumbrera tiene un apoyo intermedio sobre un puente constituido por una viga de madera para la que se ha aprovechado la curvatura natural del árbol de donde se obtuvo. Dispone de un pequeño vuelo en todo su perímetro. En las fachadas anterior y posterior uno de los maderos del entramado actúa como tirante para equilibrar el empuje de la cubierta asegurándose su función mediante pasadores de madera. La cubrición propiamente dicha se realiza con teja curva realizada de modo artesanal posiblemente en la tejería que existió en el pueblo, no recordando sus propietarios que se hubiera empleado la tablilla de madera anteriormente.
Interiormente está subdividido en siete departamentos para el grano, accesibles desde un pasillo central. Las separaciones entre ellos tienen una altura de un metro y se realizan con tablas verticales sobre entramado de maderos de 17/17 cms. En el interior la altura es de dos metros aproximadamente y a ese nivel existen dos maderos dispuestos longitudinalmente a ambos lados del pasillo, que se utilizan para colgar los sacos vacíos. Existe una abertura de forma triangular, para ventilación, situada en la pared opuesta a la puerta.
Los materiales con que está construido son pues: piedra gris de grano fino labrada en la mampostería, escalera y pilares; madera de roble en todas sus partes; piedra “tosca” y mortero de cal en paredes, y teja curva cerámica en su cubierta.
Se advierten las siguientes transformaciones desde su estado primitivo:
- Unión de la escalera al hórreo, que inicialmente se encontraba separada de él, para impedir el acceso de los roedores.
- Cierre entre los pilares de sustentación de la pared derecha en mampostería, con objeto de defender de la lluvia la parte inferior del hórreo, usada como leñera.
- Extensión de la cubierta, lado derecho, prolongándola hasta la calle, para su uso también como almacén de leña. Esta cubierta ha sido ya derruida, aunque no todavía las pilastras de ladrillo en las que se sustentaba, sin afectar en nada a la estructura del hórreo.
En la actualidad la “garaia” sigue en uso como almacén de grano, observándose en el momento de su vista (22 de febrero de 1981), la siguiente clasificación de cereales por departamentos (entrando, de izquierda a derecha): trigo, avena temprana, avena de primavera (los dos siguientes) y cebada (los tres últimos). La información sobe su capacidad se cifra por los propietarios en 60 robos por departamento (equivalente a 1.320 kilogramos de trigo), si bien se ha llegado a almacenar hasta un total de 700 robos con ayuda de sacos. Para proteger el grano de los roedores tienen por costumbre colocar ramas de un arbusto espinoso (conocido por “lapa”) [33], como trampa para los mismos, que quedan enganchados a él. Su zona inferior no se usa ya como leñera por disponerse de otro lugar más adecuado.
La antigüedad del hórreo puede estimarse superior a un siglo, puesto que su existencia es conocida por sus propietarios desde al menos tres generaciones, no poseyendo los mismos referencia documental alguna sobre este aspecto.
Su estado de conservación se considera como bueno. Se observa, sin embargo, algún desconchado en las paredes, y erosión en las maderas del exterior debido a la acción de la lluvia. Puede ser aconsejable la sustitución del revoque de mortero de cal por mortero de cemento y la protección adecuada a la madera, así como la limpieza general de su entorno.
Relación de este hórreo con otros de Navarra
Pueden apreciarse en Navarra dos variantes morfológicas y estructurales de hórreos, aún dando por sentado que ambas configuran un modelo del tipo mixto, es decir, en el que intervienen como materiales básicos la madera y la piedra:
- Una, en que la madera desempeña un importante peso estructural. Es el caso de los hórreos aezcoanos y de Urraúl. El hórreo de Izal entra en esta clasificación.
- Otra, en que es la piedra la conformadora de la estructura a través de los dinteles, muros y arcos; la madera se emplea en la construcción del tejado y en la instalación del piso del granero. Se trata, en este caso, de los hórreos de Iracheta y los muy curiosos y excepcionales por su planta cuadrada de Lusarreta y Erdozain [34].
El hórreo de Casa Ballaz, por tanto, difiere claramente de los del segundo grupo por su modestia, ya que éstos -Iracheta, sobre todo- se distinguen por una sólida construcción, con fábrica de sillarejo dispuesto a cal y canto en los muros, con cadenas esquineras de piedra sillar, con arcos de sustentación de medio punto precisamente dovelados, con cornisa superior y moldura torna ratas, dentro de una severidad artística de resabios románicos, si no asturianos, como han señalado Uranga e Íñiguez [35]. Sus dimensiones, la potencia de sus muros, la conciencia constructiva que delatan, hacen ver no ya su antigüedad sino su importancia comunitaria en la vida económica del lugar.
En la misma línea se encuentra el hórreo de Santa Fe de Epároz, el cual a pesar de ostentar maderamen sustentante en el granero propiamente dicho, y por ello adscribible al primer grupo de la clasificación, disfruta de unas características estilísticas y dimensionales próximas a ellos.
Nuestro hórreo es semejante, pues, a los aezcoanos. Veamos sus relaciones.
Su denominación [garaia] coincide con la dada a estas construcciones en Urraúl Alto y se aproxima a la que recibe en Aria [garea, garai/garei, gareia] y en Orbara y Orbaiceta [garea, que es propiamente el granero; garipe, gareipe o gareipia, el piso inferior].
Su proximidad a la casa, a 3,50 ms. de su bloque y separada de la calle por un recinto, no varía sustancialmente respecto a los pueblos objeto de comparación. Es frecuente en Aria la comprensión del hórreo en el corral (Estebenea, por ejemplo), incluso su unión con la propia casa (Andresena) [36]. Se trata, entonces, de un hórreo doméstico, con un solo propietario, el dueño de la casa, y no de uno comunitario, como el ya citado de Biurrun, o el de Iracheta, antigua propiedad de la Encomienda de San Juan de Jerusalén. Recordemos que en la transferencia de cualquier casa siempre se consideraba el hórreo como algo inseparable de ella, cuando lo había, como lo hemos podido comprobar en la época medieval, a través de la documentación consultada [37].
Su planta rectangular, coincide en disposición y dimensiones casi exactas con los hórreos aezcoanos y con el de Casa Estoki, de Zabalza, en tanto que los del segundo grupo presentan medidas superiores y, en algún caso, planta cuadrada [38].
La sustentación del granero queda asegurada por pilares troncocónicos que se cimentan sobre un murete de mampostería, como nuevamente ocurre en los hórreos de Aézcoa y de Urraúl, si bien varían su número, sus medidas y la altura del muro, tal como sucede en Aria. Los hórreos de Lusarreta, de Erdozain y de Iracheta descansan sobre arcos y prescinden de los pilares y losetas característicos del hórreo común, por lo que aíslan más la cámara en altura [39].
En cuanto a la fábrica y estructura del granero, el de Izal es semejante, una vez más, a los aezcoanos, es decir, entramado de vigas transversales y longitudinales, de madera, combinadas a otra que hace de puente y machiembradas todas entre sí; sobre ellas los solivos que forman el suelo y su entarimado, y nueva armazón de madera formando paños en las paredes, los cuales se rellenan de mampostería unida con mortero o simple tierra, revocada al exterior para evitar el efecto de la humedad; en las cuatro esquinas cadenas de sillarejo. El hórreo de Orbaiceta deja al descubierto el entramado de madera y es el que más se parece al de Casa Ballaz. Los hórreos del segundo grupo, ya lo hemos dicho, dan preferencia a la piedra y relegan la madera a un puesto secundario.
En cambio, la solución dada al tejado no se diferencia sustancialmente en ambos grupos [40], siendo a dos aguas. Los hórreos del primer grupo, y entre ellos el de Izal, de menores proporciones, emplean el sistema de parhilera para formar la armadura de la cubierta, contrarrestando el peso y afirmando las masas con tirantes interiores de imaginativa invención. Se dan variantes en la inclinación del tejado, desde los más inclinados de Aézcoa [41], que aún emplean la tabilla de haya [oholak] y la teja plana cerámica, hasta los de menor pendiente, desde Salazar al nivel más meridional de localización, con teja canal.
El acceso se produce en todos por la fachada principal y el vano de paso, sea rectangular o en arco, lleva puerta de una hoja que abre hacia el interior. Ante la entrada, escalera de patín generalmente paralela a la fachada [42].
El interior de los hórreos del primer grupo, presenta una curiosa distribución de la cámara: un pasillo central y seis, siete, nueve departamentos de un metro de altura, en los que almacenar los diferentes granos [43], no siempre ventilados por un pequeño ventanuco [44] y con un entrepiso o “garbarei”, donde colgar los aperos de labranza (Aria). Los grandes y de piedra -Lusarreta, Erdozain e Iracheta- no poseen tales subdivisiones.
Por último, la adaptación experimentada por el hórreo de Casa Ballaz -tejavana lateral y recrecimiento de los muros inferiores- ha sido en virtud a la necesidad de almacenar leña y no estiércol, como es práctica en los hórreos aezcoanos [45]. También debemos mencionar la ausencia de elementos rituales de protección en la fachada del hórreo de Izal. No es costumbre, que sepamos, colocar ramos de gurrillón (espino albar) ni de avellano a los lados de la puerta, como es habitual en Aria, por San Juan.
Conclusiones
Podemos concluir, tras las observaciones vertidas, que el hórreo de casa Ballaz participa de las características generales de estas construcciones en Navarra, como son la solidez, por un lado, y la casi hermeticidad, por otro, cualidades consideradas básicas para la buena conservación del grano. A esto hay que añadir la esbeltez y la buena proporcionalidad.
Pero se asemeja, por su proximidad geográfica, a los modelos existentes en los valles de Urraúl Alto y de Aézcoa y difiere del resto. El hórreo de Izal, aún poseyendo sus propias características, es asimilable al hórreo aezcoano, alejándose de él por ciertos detalles como el menor empinamiento del tejado y el uso de la teja curva. Morfológicamente son casi iguales.
La inclinación de su cubierta es parecida a los modelos de Urraúl, de los que se distancia por el empleo de mampostería y revoque exterior, y no de sillarejo.
Se trata, pues, de un caso intermedio entre ambos, cuya mayor peculiaridad es la de ser el único hórreo superviviente del valle de Salazar.
Bibliografía sobre el hórreo español [46]
AIZPÚN, Isabel. Ver REMÍREZ DE GANUZA, Carmen.
ÁLVAREZ OSÉS, José Antonio. “Cuestiones acerca del arte popular vasco”, en Caesaraugusta, Zaragoza, Seminario de Arqueología y Numismática Aragoneses, 1965, núms. 25/26, p. 111.
IDEM. “Arquitectura popular vasca, notas para su estudio”, en Anuario de Eusko-Folklore, San Sebastián, Sociedad de Ciencias Naturales Aranzadi, 1967/1968, vol. XXII, p. 173 [con abundante bibliografía sobre arquitectura popular vasca desde 1897 a 1966].
IDEM. “Los hórreos en el País Vasco”, en Munibe, San Sebastián, Sociedad de Ciencias Naturales Aranzadi, 1971, vol. XXII, pp. 407-412.
ANÓNIMO. “El hórreo. Sus características”, en Lucus, Lugo, Diputación Provincial, 1967.
IDEM. “La casa popular en España”, en Noticiario Turístico, Madrid, Dirección General de Promoción del Turismo, 1968, suplemento 235, pp. 8 a 10, 11, 14 y 21.
ARAMBURU, F. de. Monografía de Asturias. Oviedo, Est. Tip. de Adolfo Brid, 1899.
BAECHSLIN, Alfredo. La arquitectura del caserío vasco. Barcelona, Canosa, 1930, p. 211.
BARANDIARÁN, José Miguel de. “Establecimientos humanos y casa rural”, en Anuario de Eusko-Folklore, Vitoria, Sociedad de Estudios Vascos, 1926, vol. VI, p. 9 [sobre el hórreo de Villanueva de Aézcoa].
BELLMUNT, O. – CANELLA SECADES, F. Asturias: su historia y sus monumentos. Gijón, Fototipia y Tipografía de O. Bellmunt, 1895-1900, 3 Vol. 1309 páginas.
BIURRUN SOTIL, Tomás. El arte románico en Navarra, su aspecto monumental y educativo. Pamplona, Aramburu, 1936.
BONET, Joaquín A. “Asturias en el pensamiento de Jovellanos”, en el Boletín del Instituto de Estudios Asturianos, Oviedo, Diputación Provincial, [1947].
CANELLA SECADES, F. Ver BONET, Joaquín A.
CARBALLO, L. A. de. Antigüedades y cosas memorables del Principado de Asturias. Madrid, Julián Paredes, 1695.
CARLE, Walter. “Los hórreos en el noroeste de la Península Ibérica”, en Estudios Geográficos, Madrid, Instituto Juan Sebastián Elcano, 1948, vol. IX, pp. 275-293.
CARO BAROJA, Julio. Etnografía histórica de Navarra. Pamplona, Caja de Ahorros de Navarra, 1971, vol. II, pp. 184-185.
IDEM. “Granaria sublimia”, “horreum pensilis”, en el Homenaje a don José Esteban Uranga, Pamplona, Aranzadi, 1971, pp. 367-382.
IDEM. Los pueblos de España. Madrid, Ediciones Istmo, 1973, vol. II, pp. 31-32.
IDEM. Cuadernos de campo. Madrid, Ediciones Turner / Ministerio de Cultura, 1979, pp. 45-46.
CASTLLO, A. del. “Por las montañas de Galicia: las casas del Cebrero”, en el Boletín de la Real Academia Gallega, La Coruña, 1913, p. 149.
DÍAS, Jorge – VEIGA DE OLIVEIRA, Fernando – GALHANO, Fernando. Espigueiros portugueses. Oporto, Centro de Estudios de Etnología Peninsular, 1963.
EGUREN, Enrique de. “El hórreo en el País Vascos”, en la Revista de Estudios Vascos, San Sebastián, Sociedad de Estudios Vascos, 1922, tomo XIII, pp. 102 a 106.
FEDUCHI, Luis. Itinerarios de arquitectura popular española. II. La orla cantábrica. La España del hórreo. Madrid, Blume, 1975, tomo IV, pp. 13 a 18 [generalidades], 365 y 366 [el hórreo en navarra] y 380 y 381 [el hórreo en España].
FLORES, Carlos. Arquitectura popular española. Madrid, Aguilar, 1973, vol. I, p. 379 [el hórreo en Orbaiceta]; vol. II, pp. 72 a 75 [el hórreo vizcaíno], 248 a 260 [el hórreo asturiano], y 399 a 417, 406-407.
FRANKOWSKI, Eugeniusz. “Relato de exploraciones etnográficas verificadas durante el verano de 1917 en las Provincias Vascongadas y Navarra”, en el Boletín de la Real Sociedad Española de Historia Natural, Madrid, 1917, vol. XVII, p. 456.
IDEM. Hórreos y palafitos de la Península Ibérica. Madrid, Museo de Ciencias Naturales, 1918. Memoria 18 de la Comisión de Investigaciones Paleontológicas y Prehistóricas de la Junta para Ampliación de Estudios e Investigaciones Científicas, 154 pp. [El hórreo navarro, pp. 31 a 32].
GALHANO, Fernando. Ver DÍAS, Jorge.
GARCÍA LARRAGUETA, Santos. El gran priorato de Navarra de la Orden de San Juan de Jerusalén (siglos XII y XIII). Pamplona, Institución Príncipe de Viana, 1957.
GÓMEZ TABANERA, José Manuel. “De la prehistoria del hórreo astur”, en el Boletín del Instituto de Estudios Asturianos, Oviedo, Diputación Provincial, 1973, vol. XXVII, núm. 80.
GONZÁLEZ DE DURANA ISUSI, Francisco Javier. “Un método de investigación etnográfica y su aplicación: los hórreos vizcaínos”, en Kobie, Revista de Ciencias, Bilbao, Grupo Espeleológico Vizcaíno, 1978, tomo 8, pp. 125-150.
IDEM. “Ampliación de datos sobre hórreos vizcaínos y guipuzcoanos de los siglos XVI a XVIII”, en Anuario de Eusko-Folklore, San Sebastián, Sociedad de Ciencias Naturales Aranzadi, 1977/1978, tomo 27, 151-167.
IDEM. “De la habitación palafítica al caserío; del hórreo al caserío. Un hórreo evolucionado en el valle de Arratia”, en Anuario de Eusko-Folklore, San Sebastián, Sociedad de Ciencias Naturales Aranzadi, 1979, tomo 28, 219-229.
HOYOS SANCHO, Nieves de. La casa tradicional en España. Madrid, Publicaciones españolas, 1959.
IBERO, Juan. “Origen e historia del hórreo”, en Revista de Dialectología y Tradiciones Populares, Madrid, Instituto Antonio de Nebrija del C.S.I.C., 1945, tomo I, pp. 126-130.
IDOATE EZQUIETA, Carlos. “Inventarios de documentos relativos a la orden de San Juan de Jerusalén en Navarra. II. Encomienda de Biurrun” [Entregado para su publicación en la revista Príncipe de Viana], p.19 del original.
IGLESIAS, Alfonso. El libro de los hórreos. Impresiones de un viaje por la ruta de los hórreos de España. Gijón, Bankunión, 1975. 120 pp. [El hórreo navarro, pp. 78 a 82].
ILARRI ZABALA, Manuel. “Salacencos del siglo XVI”, en Navarra. Temas de Cultura Popular, Pamplona, Diputación Foral de Navarra, 1978, núm. 316, pp. 19-20. [Sobre un antiguo almacén de grano en Igal].
ÍÑIGUEZ, Francisco. Ver URANGA, José esteban.
ITURRIZA Y ZABALA, Juan de. Historia General de Vizcaya y Epítome de las Encartaciones. Bilbao, Casa Dochao, 1793, cap. 19, aptdo. 156, p. 69. Y, Bilbao, Librería Arturo, 1967.
LACARRA, José María. “Textos navarros del Códice de Roda”, en Estudios de Edad Media de la Corona de Aragón, vol. I, Zaragoza, 1945, pp. 193-284.
IDEM. Colección diplomática de Irache (958-1222). Zaragoza, C.S.I.C. – Instituto de Estudios Pirenaicos, 1965, vol. I.
LACARRA, J. M. – MARTÍN DUQUE, A. J. – ZABALO, J. Colección diplomática de Irache (958-1397), vol. II. Obra inédita.
LARREA Y RECALDE, Jesús de. “El garaixe (hórreo) agregado al caserío”, en Anuario de Eusko-Folklore, Vitoria, Sociedad de Estudios Vascos, 1926, tomo VI, pp. 137-145; año 1927, tomo VII, pp. 127-136; año 1928-1930, tomo X, pp. 63-66; año 1932, tomo XII.
LEIZAOLA, Fermín de. “Contribución al estudio del hórreo (garai”), en la Navarra pirenaica”, en Cuadernos de Etnología y Etnografía de Navarra, Pamplona, Institución Príncipe de Vana, 1969, tomo I, pp. 363-388.
IDEM. ”Notas sobre un hórreo guipuzcoano”, en Anuario de Eusko-Folklore, San Sebastián, Sociedad de Ciencias Naturales Aranzadi, 1971/1972, tomo XXIV, pp. 45-58. [Añade al final bibliografía].
IDEM. “El hórreo de Lusarreta (Valle de Arce, Navarra)”, en Cuadernos de Etnología y Etnografía de Navarra, Pamplona, Institución Príncipe de Vana, 1974, tomo VI, pp. 87-88.
IDEM. La Etnia Vasca. Euskaldunak. San Sebastián, Etor, 1979, vol. II, cap. De Agricultura, pp. 275-276.
LÓPEZ SOLER, Juan. “Los hórreos gallegos”, Memorial LXXXV de la Sociedad Española de Antropología, Etnología y Prehistoria. Madrid, 1931, tomo X, pp. 97-161. 40 fotografías.
LLANO Y ROZA DE AMPURIA, A. Bellezas de Asturias de oriente a occidente. Oviedo, Imp. Gutenberg, 1928.
MARTÍN DUQUE, Ángel J. Colección diplomática de Obarra (siglos XI-XIII). Zaragoza, Instituto de Estudios Pirenaicos, 1965, pp. 3 y 94.
IDEM. Documentación medieval de Leire (siglos IX-XII). (En prensa).
IDEM. Ver LACARRA, J. M.-MARTÍN DUQUE, A. J.-ZABALO, J.
MARTÍNEZ RODRÍGUEZ, Ignacio. “Tipos de hórreos del NW. Ibérico y su distribución geográfica”, en Las Ciencias [Anales de la Asociación Española para el Progreso de], Madrid, 1959, núm. XXIV, pp. 167-188 y 461-492.
MAJUELO, Emilio. 1980. Actividades del Servicio de Patrimonio Artístico. Pamplona, Institución Príncipe de Viana, 1980 [Hórreo del Monasterio de santa Fe de Epároz].
MESQUITA DE FIGUEIREDO, A. “Palafittes terrestres contemporaines en Portugal”, en Revue de l’École d’Antropologie, 1899, p. 167.
MOLINA DE MÁLAGA (EL LICENCIADO). Descripción del Reyno de Galicia y de las cosas notables del: con las armas y blasones de los Linages de Galicia, de donde proceden señaladas Casas en Castilla. Mondoñedo, 1550.
MURGUÍA, M. España, sus monumentos y sus artes, su naturaleza e historia: Galicia. Barcelona, Establecimiento tipográfico-editorial de Daniel Cortezo y Cia., 1888.
NOLTE Y ARAMBURU, Ernesto. “Compilación de los hórreos (“garaixe”) de la Provincia de Vizcaya y noticia de los nuevos hallados”, en Estudios Vizcaínos, Bilbao, 1971, tomo 3, pp. 81-170.
IDEM. “Nuevos datos sobre hórreos (“garaixe”) de la Provincia de Vizcaya”, en Estudios Vizcaínos, Bilbao, 1972, tomo 5, pp. 133-145.
IDEM. “III Contribución a la compilación de los hórreos (“garaixe”) de la Provincia de Vizcaya. Dos nuevos hórreos en Ispaster y noticia de otro en Arbácegui”, en Estudios Vizcaínos, Bilbao, 1973, tomo 7/8, pp. 219-226.
IDEM. “IV Contribución a la compilación de los hórreos (“garaixe”) de la Provincia de Vizcaya”, en Kobie. Revista de Ciencias, Bilbao, Grupo de Espeleología Vizcaína, 1978, tomo 8, pp. 151-157.
IDEM. “V Contribución a la compilación de los hórreos (“garaixe”) de la Provincia de Vizcaya. Un nuevo hórreo y restos de otros pertenecientes a Garay (Vizcaya), y noticia de otros restos dudosos”, en Kobie. Revista de Ciencias, Bilbao, Grupo de Espeleología Vizcaína, 1979, tomo 9, pp. 219-227.
IDEM. “VI Contribución a la compilación de los hórreos (“garaixe”) del Señorío de Vizcaya”, en Kobie. Revista de Ciencias, Bilbao, Grupo Espeleológico Vizcaíno”, 1980, tomo 10, pp. 257-264.
PEDREGAL Y CAÑEDO, M. “Memoria sobre los primeros pobladores de Asturias y su relación con los demás pueblos”, en Resumen de las Actas y Tareas de la Comisión de Monumentos Históricos y Artísticos de la Provincia de Oviedo desde 1 de febrero de 1868 hasta la fecha. Oviedo, E. Uria 1871.
PEÑA BASURTO, Luis. “El hórreo (“garea”) en Navarra. Dos nuevos hórreos en la montaña navarra”, en Anuario de Eusko-Folklore, San Sebastián, Sociedad de Ciencias Naturales Aranzadi, 1965/1966, tomo XXI, pp. 65-66. Y en Munibe, de 1966, tomo XVIII, pp. 78-105.
PEÑA SANTIAGO, Luis Pedro-SAN MARTÍN, Juan. “Estudio etnográfico de Urraúl Alto (Navarra)”, en Munibe, San Sebastián, Sociedad de Ciencias Naturales Aranzadi, 1966, tomo XVIII, ¼, pp. 83 y 105.
REMÍREZ DE GANUZA, Carmen – AIZPÚN, Isabel. “El hórreo más antiguo de Navarra por fin, restaurado”, en Diario de Navarra, Pamplona, martes 17 de marzo de 1980.
RIBERA, Emilio. “Hórreo”, Gran Enciclopedia Asturiana, Gijón, 1970, vol. VIII, pp. 140-144.
SAN MARTÍN, Juan, ver PEÑA SANTIAGO, Luis Pedro.
TORRES BALBÁS, Leopoldo. “La vivienda popular en España”, en Folklore y costumbres de España, Barcelona, Alberto Martín Editor, 1933, vol. III, pp. 234-254 [el hórreo navarro, p. 253].
URABAYEN , Leoncio. La tierra humanizada. Madrid, Espasa Calpe, 1949, pp. 167-169.
URANGA, José Esteban – ÍÑIGUEZ, Francisco. Arte medieval navarro. Pamplona, Caja de Ahorros de Navarra, 1971, vol. I, Arte Prerrománico, cap. IV, pp. 169-173.
URÍA Y RÍU, Juan. Oviedo, la ciudad de los hórreos. Notas para la historia de Oviedo. Oviedo, 1967.
URTASUN VILLANUEVA, Benito. “Valle de Aézcoa”, en Navarra. Temas de Cultura Popular, Pamplona, Diputación Foral de Navarra, 1972, núm. 126, p. 30.
VAAMONDE LORES, A. Ferrol y Puentedeume, escrituras referentes a propiedades adquiridas por el Monasterio de Sobrado en dichos partidos durante los siglos XII, XIII, XIV... Coruña, Tipografía de F. García Ybarra, 1909.
IDEM. “La Cofradía de los Sastres de Betanzos. Año 1162”, en el Boletín de la Real Academia Gallega, Coruña, 1911, p. 244.
VALLAURE, Juan. “El hórreo asturiano”, en el II Congreso Nacional de Arquitectura Típica Regional ponencias-comunicaciones-conclusiones : Oviedo, 18-22 octubre 1966. Oviedo, Gráficas Oviedo, 1971.
VEIGA DE OLIVEIRA, Fernando. Ver DÍAS, Jorge.
VIOLANT Y SIMORRA, Ramón. El Pirineo Español. Madrid, Plus Ultra, 1949, p. 182.
YNCHAUSTI, Miren de. “Etnografía de Aria (Valle de Aézcoa)”, en Cuadernos de Etnología y Etnografía de Navarra, Pamplona, Institución Príncipe de Vana, 1971, tomo III, pp. 341-342.
ZABALO, Javier. Ver LACARRA, J. M.-MARTÍN DUQUE, A. J-ZABALO. J.
ZUBIAUR CARREÑO, Francisco Javier. Arte popular de Navarra. Pamplona, Dirección de Educación de la Diputación Foral de Navarra, 1980, pp. 13-14.
Roberto Urtasun / Francisco Javier Zubiaur. Pamplona, a 10 de mayo de 1981
Notas
[1] Véase el apartado de bibliografía. El tema ha sido objeto también de numerosas publicaciones turísticas, algunas de las cuales citamos en el apéndice bibliográfico.
[2] En este lugar se conservaría uno a juicio de Peña Basurto [1965-66], de Flores [1973] y de Feduchi [1975]; y dos según Urtasun Villanueva [1972].
[3] En este lugar se conservaría uno según Urtasun Villanueva [1972] y dos según Peña Basurto [1965-66].
[4] Según Urtasun Villanueva [1972] habría tan solo uno.
[5] Aquí se conservaría uno según Violant [1949], “alguno” según Flores [1973] y cuatro según Urtasun Villanueva [1972]
[6] En Aria se habrían conservado nueve según Leizaola [1969], diez según Ynchausti [1971] y doce según Feduchi [1975].
[7] En Abaurrea alta, uno según Violant [1949].
[8] En la Abaurrea Baja, uno según Frankowski [1918].
[9] Estos últimos de Garralda, Garayoa e Iriberri son notificados por Leizaola [1979], sin mencionar su número.
[10] Se conserva un ejemplar, según publica Leizaola [1974].
[11] Hay un ejemplar en cada uno de estos pueblos, según la información oral que hemos recibido, y los planos que gentilmente nos ha permitido consultar la Institución Príncipe de Viana.
[12] Peña Santiago y San Martín [1966] constataron uno en cada lugar.
[13] Y uno más en Iracheta, según los estudios de caro Baroja [1971] y de Uranga e Íñiguez [1971].
[14] Año 1002, marzo [25-31]. El presbítero Tedigero da al abad Galindo y a los monjes de Santa María de Obarra “medio chasalicio chum sua superposita et uno orreo, et suo exio et regresio…” en Calvera. Martín Duque [1965, Doc. 1, 3].
Año [1025], junio. Ubirana da a su hijo Durando dos tierras y una viña, la tercera parte de una “cortina” y la mitad de un hórreo en Calvera (“…et illum orreum ipsa medietate…”). Martín Duque [1965, Doc. 104, 94].
[15] Martín Duque [1981, Doc. 141]. Blasco, monje de Elcarte, y su hermana Urraca, ofrecen al Monasterio de Leire su cuerpo y su alma y le dan todo su alodio de la villa de Avárriz con sus “orrea”.
[16] Lacarra [1965, Doc. 75]. Doña Toda Sánchez de Lizasoain hace donación a Irache de toda su hacienda, incluyendo una “domus cum suo orreo”.
[17] Martín Duque [1981, Doc. 75]. Sancha Vélez, viuda de Sancho Fortuñones de Petrola, da al abad Raimundo y a Leire sus heredades de la villa de Reta, en Unciti, con sus casas y su hórreo.
[18] Martín Duque [1981, Doc. 206]. Jimeno Fortuñones de Lehet y de Huarte da al abad Raimundo y a Leire el diezmo de todos sus bienes de la villa de Benoz, entre los que se citan los hórreos.
[19] Martín Duque [1981, Do. 225]. Fortún Sanz de Yárnoz y su mujer, Ermesinda Garcés, venden al abad Raimundo y a Leire por tres mil sueldos jaqueses la villa y su palacio de Navasa, en Aragón, con sus hórreos.
[20] Martín Duque [1981, Doc. 234]. Aznar Arcez de Mutiloa da al abad Raimundo y a Leire un palacio con su iglesia -a la que llaman Morea –“cum orreis”-, en Badostain.
[21] Martín Duque [1981, Doc. 263]. Donación de Jimena de Berroya al abad Raimundo, de Leire, de un palacio “cum suo cellario et cum orreo suo”.
[22] Martín Duque [1981, Doc. 264]. Juan de Liédena da al abad Raimundo y a Leire “medium palacium…et medio orreo”.
[23] Martín Duque [1981, Doc. 302]. Donación de Urraca de Bolea a Leire de varias casas con su hórreo.
[24] Lacarra-Martín Duque-Zabalo [inédito, Docs. 460 y 470]. En ambos documentos, el abad de Irache fija la pecha que deben pagar los labradores de Ayegui y de Ugar. En el primer caso, los de Ayegui entregarán cuarenta y ocho “cafices de pan, mitad trigo y mitad ordio”, por año, a presentar por San Gil, en setiembre, “a nos e a nuestros sucesores en el orrio de Irach, según usado e costumbrado han”. Los de Ugar entregaban cuarenta cahíces de buen trigo por San Miguel, también en setiembre.
[25] Ilarri y Zabala [1978, 19-20]. En este año, el prior del Monasterio de Leire apela a la Corte porque en Igal han abierto a mano armada el hórreo que allí tiene el monasterio, del que sacaron más de cien robos de trigo. Dice que estaba situado junto a la iglesia y se componía de dos cajas grandes de madera “que tienen al remate del suelo agujeros como puños cerrados, que se tapan con trancas de madera y una barra de hierro con cerradura”.
[26] Idoate Ezquieta [1981, Doc. 68].
[27] Ver GARCÍA LARRAGUETA, Santos A. El Gran Priorado de Navarra de la Orden de San Juan de Jerusalén. Siglos XII-XIII. Pamplona, Institución “Príncipe de Viana”, 1957.La densa documentación aquí agrupada habla de posesiones rurales con frecuencia y menciona todo tipo de instalaciones agrícolas, en tanto que hórreos sólo el de Iracheta.
[28] Lo mismo cabe decir respecto a las posesiones de la real Colegiata de Roncesvalles. Ver OSTOLAZA, Mª Isabel. Colección diplomática de Santa María de Roncesvalles (1127-1300). Pamplona, Institución “Príncipe de Viana”, 1978; y MARTINENA RUIZ, Juan José. Catálogo documental de la Real Colegiata de Roncesvalles (1301-1500). Pamplona, Institución “Príncipe de Viana”, 1979.
[29] IRIBARREN, José María. Vocabulario navarro. Pamplona, Institución “Príncipe de Viana”, 1952. Voces “algorio” y “argorio”, pp. 39 y 56 respectivamente.
[30] Caro Baroja [1971, 373].
[31] Flores [1973, II, 406], nos ofrece el dibujo de una de ellas procedente de Orradre.
[32] Piedra “tosca” o “roya”. Se dice de una tierra dura, impermeable [Ribera]; piedra, ruejo: “coge una tosca y machácale la cabeza” [Mélida]; piedra calcárea de poco peso que, cortada a sierra, utilizan en roncal para construir chimeneas y tabiques. (En vascuence llaman “toska” al caolín). Piedra arenisca con que limpian los cuchillos y vasijas metálicas Roncal. Véase IRIBARREN, J. M. Vocabulario navarro. Pamplona, Institución “Príncipe de Viana”, 1952, p. 500.
[33] “Lapa”, nombre que dan al fruto de las matas denominadas lappa major y setaria verticilata, que por estar erizado de espinillas, emplean los chicos para arrojarlo al pelo de las mozas [Pamplona, Tierra Estella, Cuenca, Mélida, Aoiz, Etayo]. En Tudela las llaman “monas”, y en Sangüesa “amparagón”. En otras localidades “pegadizo” y “garrapata”. Véase IRIBARREN, op. cit., p. 297.
[34] El de Lusarreta, de 5 por 5 m. de planta, ya ha sido dado a conocer por Leizaola [1974, 87-88]. La planta del de Erdozain es ligeramente trapezoide, de lados que miden 417, 448, 428 y 438 cms. Forman la parte sustentante cuatro arcos de medio punto de a nueve dovelas cada uno y de 245 cms. De altura. Por encima de ellos discurre una moldura torna ratas corrida. La puerta va a continuación, en el lado S., y es rectangular, de amplias medidas (puede alcanzar los 2 m. de altura). Carece de techumbre, perdida por hundimiento. Los muros son de 44 cms. De grosor, con un resalte interior de 12 cms., sobre el que se apoyaría el entarimado del suelo de la cámara. La obra es de sillarejo dispuesto a cal y canto, con cadenas esquineras de sillar, como en sus similares de Iracheta y Lusarreta.
[35] Uranga-Íñiguez [1971, I, 169-173], Caro Baroja [1971, 375-377] y Leizaola [1974, 87-88].
[36] No es éste el caso más común ni en Navarra, ni fuera de ella, ya que es conveniente preservar el pan diario de un hipotético incendio. El hórreo exento conserva y defiende mejor el grano.
[37] A pesar de ello se han producido en la historia cesiones de “medio hórreo”, como el de Calvera y el de Adoain, por ejemplo, notas 14 y 22 ¿Eran compartidos, efectivamente, por dos propietarios? La documentación constata la existencia de varios hórreos dependientes de una casa, que también son transferidos inseparablemente.
[38] He aquí las medidas: de planta cuadrada los hórreos de Lusarreta (5 por 5 m.) y de Erdozain (4,48 por 4,17 m.) (ya hemos advertido de su irregularidad); y de planta rectangular el de Iracheta, que es el mayor de todos los navarros conocidos, (8,44 por 5,51 m.); el de Santa Fe de Epároz es de planta tan solo ligeramente rectangular y de medidas 6 por 5 m.
[39] Esto permite usar el piso inferior tapiado como cochiquera en Lusarreta. Los hórreos del primer grupo quedan a una altura del suelo no mayor de metro y medio, excepción del de Echeberrikoa (Aria) a 2 metros.
[40] Los tejados de los hórreos de Iracheta y Santa Fe se apoyan en sendas cornisas.
[41] En esto, como en el empleo de materiales y métodos de edificación, no hay que olvidar que el hórreo no es una excepción constructiva, sino que participa de los caracteres generales de la casa navarra y se atiene a sus transformaciones en relación con el medio. Los hórreos aezcoanos, por ejemplo, presentan alero saliente sobre el hastial de la entrada, para proteger la fachada de las precipitaciones.
[42] No así los hórreos de Izal y de Lusarreta, con escalera perpendicular a la fachada.
[43] En el hórreo de Estebenea (Aria), tristemente derrumbado, se destinaban tres departamentos para el trigo sembrado en octubre, dos para la avena, y uno para el trigo de marzo, las habas, la veza y la cebada [Ynchausti, 1971].
[44] La ventilación es mínima en los hórreos navarros y las ventanas más parecen servir para iluminar que para ventilar. Sobre si conviene o no airear el interior del granero hay división de opiniones desde la época antigua. Ver Caro Baroja [1971, 367 y siguientes].
[45] En Aézcoa, al piso inferior se le denomina “ongariterri” o “zola”, estercolero. La tejavana se ha empleado con los mismos fines en Aria.
[46] La bibliografía reunida en este punto no pretende ser exhaustiva, aunque hemos procurado reflejar en ella los estudios más importantes realizados sobre el hórreo en España. En ella incluimos los trabajos dedicados al hórreo en Navarra, y no hemos despreciado ningún texto por la cónico que fuera, incluyendo las citas o referencias al tema encontradas en las transcripciones documentales.








